◆ヤマダ不動産 福岡中央店◆

>>PC&スマホサイトへ
下へ
物件詳細(売買)

オール電化^^床暖房付き^^JRと西鉄のWアクセス^^西鉄「井尻」歩10分、JR「笹原」歩11分^^歩5分圏にハローデイ、セブンなど周辺環境充実^^
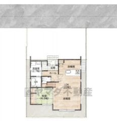
約4.5帖の和室含む4LDK。LDK広々20帖^^ 全居室ウォークインクローゼット付き。主寝室は広々10帖^^南面バルコニーで陽当たり良好^^ 広々とした約20帖のLDK。リビング一部とキッチンに床暖房付き^^CGによるイメージ画像。 大きな掃き出し窓のあるリビングは、陽光あふれる明るい空間です。ゆったりと寛げる憩いの場となりそうです。 リビング一部とキッチンに床暖房完備^^寒さの厳しい日でも体を芯から暖めてくれますね^^ リビング隣には、ホッとできる和室を用意。客間としてはもちろん、お子様のお昼寝スペースや書斎としても活躍してくれそうです^^ 明るいダイニング^^キッチン後方にはパントリー付き^^ 対面式キッチンなのでリビングにいるご家族とコミュニケーションを取りながら洗い物や、お料理が楽しめそうですね^^ お手入れのしやすいIHクッキングヒーターです。3口コンロなので、効率よくお料理が楽しめます。毎日のお料理も楽しくなりますね^^ 炊事時間を大幅に短縮できる食器洗浄乾燥機付き^^食器を洗う手間が減るので家族とのコミュニケーションの時間や自分の時間が増えますね。 1日の疲れを癒すくつろぎのバスルーム。足を伸ばしてもゆったりと入れるサイズです。お子様と一緒にお風呂に入っても狭くないですね^^ 浴室暖房乾燥機には、暖房、乾燥、涼風、換気の4つの機能が付いています。タイマー付きです。換気・雨の日の洗濯も安心です^^ 三面鏡裏収納付き洗面化粧台です^^ 歯磨きセットやスキンケア用品などの収納に便利ですね。 脱衣スペースも広々と確保されていて嬉しいですね^^ 1階2階の2ヶ所にトイレがありますので、忙しい朝にも家族に気を使わず、ゆとりが生まれますね^^手洗い器付き^^ リビング階段は顔を合わせる時間が増えるので、ご家族とのコミュニケーションがとりやすく距離がグッと縮まりそうですね^^ 6帖。2面採光を確保した明るい室内は、風通しも良く、大変居心地の良い空間となっております。日当たりがよく、子供部屋としての利用もおすすめ。 2階全洋室にハンガーパイプ付きのウォークインクローゼットが設けられています^^ 10帖。主寝室としてお使いいただけそうなこちらのお部屋は、日当たりが良く、爽やかな風を感じて起きる朝は、快適生活の始まりに。 寝室のウォークインクローゼット。たっぷり収納できるので衣替えの心配もいりませんね^^ 幅広のインナーバルコニーは多少の雨でも洗濯物を守ってくれ、家事を助けてくれること間違いなし。眩しすぎる日差しも和らげます。 防犯はもちろん、セールスマン対策にもなるモニター付きインターホンです。お子さん1人での留守番時にも活躍しそうです。 玄関にはシューズクローク付き。ご家族全員分の靴からベビーカーやゴルフバッグなどもしっかり収納できます^^向かいにシューズボックスも付いています^^ カースペースは2台分を確保^^ 前面道路。 完成予想図、現況と異なる場合は現況優先となります。 落ち着いたカラーの組み合わせでシンプルモダンな印象のお家です^^ セブンイレブン 福岡井尻4丁目店 ファミリーマート 春日桜ヶ丘八丁目 ハローデイ 井尻店 マルキョウ 井尻店 福岡徳洲会病院 ドラッグストアモリ 須玖北店 ホームセンター・グッデイ 須玖店 えきマチ1丁目 南福岡 春日北小学校 春日北中学校 大きなお鍋も楽々洗える幅の広いシンクです^^洗剤やスポンジもすっきりできる収納付き。 コンロ上には換気扇完備^^ キッチンに床下収納があります。長期保存ができるもの、調理器具、防災グッズを入れておくのもいいですね。 6帖。木の温もりがやさしいフローリングとシンプルなクロスです^^ おいだき機能つきなのでお風呂に入る時間が異なるご家庭には嬉しいですね。ボタン一つで快適で便利な生活が^^ 家の顔となる玄関はデザインクロスを使用しおしゃれに仕上げました^^ 2025年5月撮影。 前面道路は北側約3.4mの公道に面しています^^ 前面道路は北側約3.4mの公道に面しています^^
【新築一戸建て】春日市桜ヶ丘1丁目 新築戸建
西鉄天神大牟田線 井尻 10分
鹿児島本線 笹原 11分
福岡県春日市桜ヶ丘1丁目(地図)

10万円分の「全国のヤマダデンキで使えるポイント」or「JCBギフトカード」or「65インチTV」or「空気清浄機・ダイソンドライヤー等の家電」or「6畳用エアコン」or「ヤマダデンキ特別優待割引券」≪限定1品≫プレゼント☆
さらに、ご購入相談で来店後、Google口コミ投稿で2000円分のQUOカードプレゼント!※一世帯2回まで
土日祝日もご案内可能です^^
是非一度「ヤマダ不動産」へご相談ください!あらゆる不安や疑問に誠心誠意お応えします^^

価格:5,580万円(税込)

建物面積:118.66m2
土地面積:143.30m2
間取り:4LDK
階数:2階建
建物構造:木造
築年月:2025/05

現況:空家
建ぺい率:60%
容積率:200%
土地権利:所有権
建築確認番号:
駐車場:有 (2台)
学校:春日北小学校/春日北中学校

物件コード:112802
取引態様:仲介
公開日:2025/10/30
広告有効期限:2025/11/13

092-600-4407

上へ

トップページ

(c)グラングッド不動産株式会社