春日市松ヶ丘3丁目1期 1号棟 新築戸建(売買 新築一戸建て) | 春日市松ヶ丘 | 福岡市周辺の不動産のことなら ヤマダ不動産 福岡中央店

春日市松ヶ丘3丁目1期 1号棟 新築戸建 | 春日市松ヶ丘の不動産物件

10万円分の「全国のヤマダデンキで使えるポイント」or「JCBギフトカード」or「65インチTV」or「空気清浄機・ダイソンドライヤー等の家電」or「6畳用エアコン」or「ヤマダデンキ特別優待割引券」≪限定1品≫プレゼント☆
さらに、ご購入相談で来店後、Google口コミ投稿で2000円分のQUOカードプレゼント!※一世帯2回まで
土日祝日もご案内可能です^^
是非一度「ヤマダ不動産」へご相談ください!あらゆる不安や疑問に誠心誠意お応えします^^
【新築一戸建て】 新築 駐車場あり
価格 3,598万円 (税込)
博多南線 博多南駅 徒歩39分
スマホ表示
物件コード:110678
所在地 建物面積
土地面積
間取り 築年月
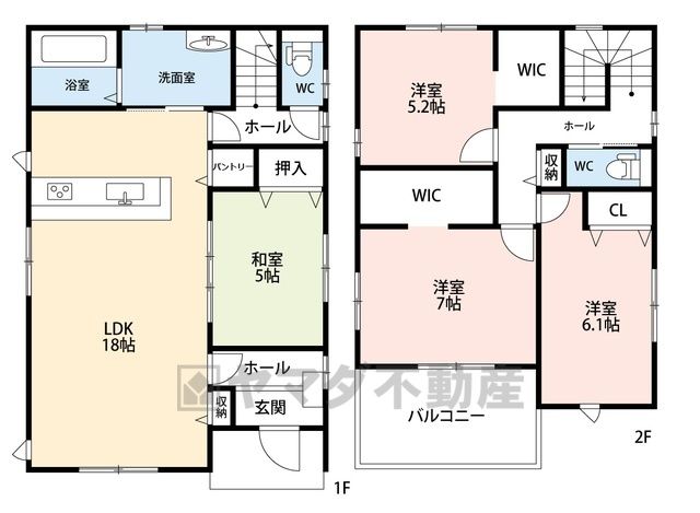
福岡県春日市松ヶ丘3丁目 104.95m2
141.78m2
4LDK 2025/06

物件基本情報

▲西鉄バス「松ケ丘団地」停まですぐ^^(42m歩1分)。大橋駅行き^^春日南中学校(歩5分)^^業務スーパー塚原台店(車3分/550m)^^
▲約5帖の和室含む4LDK。18帖のLDKにはリビング収納・パントリー付き^^2階2洋室にウォークインクローゼット付き^^その他全居室収納付き。南面バルコニーで陽当たり良好^^
物件種目 新築一戸建て
物件名称 春日市松ヶ丘3丁目1期 1号棟 新築戸建
所在地 福岡県春日市松ヶ丘3丁目
交通
博多南線 博多南駅 徒歩39分
鹿児島本線 大野城駅 徒歩40分
階数 2階建
建物構造 木造
建ぺい率/容積率 60% / 200%
駐車場 有 (2台)
学校 天神山小学校 / 春日南中学校
設備・条件
  • ガス:個別プロパン
  • 汚水:その他
  • 水道:公営水道
  • TVドアホン
  • Wクローゼット
  • 追い焚き
  • 洗浄便座
  • シャンプードレッサー
  • 浴室1坪以上
  • 床下収納
  • 浴室乾燥機
  • オートバス
  • 食器洗乾燥機
  • カウンターキッチン
  • コンロ三口
  • システムキッチン
  • バス・トイレ別
ヤマダ不動産 福岡中央店
Tel092-600-4407
お気軽にお問い合わせください。

画像・写真

  • 18帖。家族が集まる開放的なリビング。思い思いの時間を過ごしたり食事をしたり、素敵な団らんの場になりますね。
    18帖。家族が集まる開放的なリビング。思い思いの時間を過ごしたり食事をしたり、素敵な団らんの場になりますね。
  • 5帖。リビング隣には、ホッとできる和室を用意。客間としてはもちろん、お子様のお昼寝スペースや書斎としても活躍してくれそうです^^
    5帖。リビング隣には、ホッとできる和室を用意。客間としてはもちろん、お子様のお昼寝スペースや書斎としても活躍してくれそうです^^
  • リビングには収納が設けられています。物が沢山集まりがちなリビングに収納スペースがあると便利ですね^^
    リビングには収納が設けられています。物が沢山集まりがちなリビングに収納スペースがあると便利ですね^^
  • 対面式キッチンなのでリビングにいるご家族とコミュニケーションを取りながら洗い物や、お料理が楽しめそうですね^^
    対面式キッチンなのでリビングにいるご家族とコミュニケーションを取りながら洗い物や、お料理が楽しめそうですね^^
  • 炊事時間を大幅に短縮できる食器洗浄乾燥機付き^^食器を洗う手間が減るので家族とのコミュニケーションの時間や自分の時間が増えますね。
    炊事時間を大幅に短縮できる食器洗浄乾燥機付き^^食器を洗う手間が減るので家族とのコミュニケーションの時間や自分の時間が増えますね。
  • 3種類の料理が同時に調理できる、3口ガスコンロ。忙しい夕食の支度時間が短縮できて効率よくお料理が楽しめます。
    3種類の料理が同時に調理できる、3口ガスコンロ。忙しい夕食の支度時間が短縮できて効率よくお料理が楽しめます。
  • おいだき機能つきなのでお風呂に入る時間が異なるご家庭には嬉しいですね。ボタン一つで快適で便利な生活が^^
    おいだき機能つきなのでお風呂に入る時間が異なるご家庭には嬉しいですね。ボタン一つで快適で便利な生活が^^
  • 1日の疲れを癒すくつろぎのバスルーム。足を伸ばしてもゆったりと入れるサイズです。お子様と一緒にお風呂に入っても狭くないですね^^
    1日の疲れを癒すくつろぎのバスルーム。足を伸ばしてもゆったりと入れるサイズです。お子様と一緒にお風呂に入っても狭くないですね^^
  • 三面鏡裏収納付き洗面化粧台です^^ 歯磨きセットやスキンケア用品などの収納に便利ですね。
    三面鏡裏収納付き洗面化粧台です^^ 歯磨きセットやスキンケア用品などの収納に便利ですね。
  • 脱衣スペースも広々と確保されていて嬉しいですね^^
    脱衣スペースも広々と確保されていて嬉しいですね^^
  • 1階2階の2ヶ所にトイレがありますので、忙しい朝にも家族に気を使わず、ゆとりが生まれますね^^ 小窓付きで換気する時に便利です^^
    1階2階の2ヶ所にトイレがありますので、忙しい朝にも家族に気を使わず、ゆとりが生まれますね^^ 小窓付きで換気する時に便利です^^
  • お子様も高齢の方も安心して上り下りができる手摺がついた安心設計です。 階段には小窓を配置しました。日中でも暗くなりがちな階段下が明るくなり安全ですね。
    お子様も高齢の方も安心して上り下りができる手摺がついた安心設計です。 階段には小窓を配置しました。日中でも暗くなりがちな階段下が明るくなり安全ですね。
  • 5.2帖。2面採光を確保した明るい室内は、風通しも良く、大変居心地の良い空間となっております。日当たりがよく、子供部屋としての利用もおすすめ。
    5.2帖。2面採光を確保した明るい室内は、風通しも良く、大変居心地の良い空間となっております。日当たりがよく、子供部屋としての利用もおすすめ。
  • 6.1帖。住む人のこだわりを活かす洋室^^クローゼットもあり荷物もすっきり片付けられ、ゆとりのある暮らしが出来ます^^
    6.1帖。住む人のこだわりを活かす洋室^^クローゼットもあり荷物もすっきり片付けられ、ゆとりのある暮らしが出来ます^^
  • 7帖。主寝室としてお使いいただけそうなこちらのお部屋は、日当たりが良く、爽やかな風を感じて起きる朝は、快適生活の始まりに。
    7帖。主寝室としてお使いいただけそうなこちらのお部屋は、日当たりが良く、爽やかな風を感じて起きる朝は、快適生活の始まりに。
  • 2階2洋室にハンガーパイプ付きのウォークインクローゼットが設けられています。たっぷり収納できるので衣替えの心配もいりませんね^^
    2階2洋室にハンガーパイプ付きのウォークインクローゼットが設けられています。たっぷり収納できるので衣替えの心配もいりませんね^^
  • 陽当たりの良いバルコニーです。お洗濯やお布団干しはもちろん、日光浴スペースにも^^足元は防水工事施工済です。
    陽当たりの良いバルコニーです。お洗濯やお布団干しはもちろん、日光浴スペースにも^^足元は防水工事施工済です。
  • 防犯はもちろん、セールスマン対策にもなるモニター付きインターホンです。お子さん1人での留守番時にも活躍しそうです。
    防犯はもちろん、セールスマン対策にもなるモニター付きインターホンです。お子さん1人での留守番時にも活躍しそうです。
  • 採光も考えられた明るい玄関です。シューズボックス付きなので、家族全員の靴がきれいに整頓できます。
    採光も考えられた明るい玄関です。シューズボックス付きなので、家族全員の靴がきれいに整頓できます。
  • 玄関には屋根があるので雨の日も安心してカバンの中から鍵が探せますね^^
    玄関には屋根があるので雨の日も安心してカバンの中から鍵が探せますね^^
  • 駐車スペースはゆとりある2台分を確保。マイカー用に、お客さま用に、余裕を持ってご利用いただけます。
    駐車スペースはゆとりある2台分を確保。マイカー用に、お客さま用に、余裕を持ってご利用いただけます。
  • 前面道路は南側約16mの公道に面しています^^
    前面道路は南側約16mの公道に面しています^^
  • 1号棟。
    1号棟。
  • 完成予想図、現況と異なる場合は現況優先となります。
    完成予想図、現況と異なる場合は現況優先となります。
  • セブンイレブン 春日塚原台店
    セブンイレブン 春日塚原台店
  • ミスターマックス 春日店
    ミスターマックス 春日店
  • 業務スーパー 塚原台店
    業務スーパー 塚原台店
  • ローソン 春日大土居二丁目店
    ローソン 春日大土居二丁目店
  • ディスカウントドラッグコスモス 天神山店
    ディスカウントドラッグコスモス 天神山店
  • ダイレックス 春日店
    ダイレックス 春日店
  • 樋口病院
    樋口病院
  • アクロスモール春日
    アクロスモール春日
  • 天神山小学校
    天神山小学校
  • 春日南中学校
    春日南中学校
  • 大きなお鍋も楽々洗える幅の広いシンクです^^ステンレスシンクなので簡単にお掃除できますよ。洗剤やスポンジもすっきりできる収納付き。
    大きなお鍋も楽々洗える幅の広いシンクです^^ステンレスシンクなので簡単にお掃除できますよ。洗剤やスポンジもすっきりできる収納付き。
  • コンロ上には換気扇完備^^すぐ横に小窓が設けられているので、換気扇と合わせてWで換気できます^^
    コンロ上には換気扇完備^^すぐ横に小窓が設けられているので、換気扇と合わせてWで換気できます^^
  • 2025年4月撮影。 全2区画の新築戸建です^^左側が1号棟、右側が2号棟。
    2025年4月撮影。 全2区画の新築戸建です^^左側が1号棟、右側が2号棟。

コメント

本日内覧可能☆10万円相当のヤマダポイントorJCBギフトカードプレゼント!

西鉄バス「松ケ丘団地」停すぐ!(歩1分/42m)♪大橋駅行き♪
春日南中学校(歩5分)♪春日南道り(580号線)沿い^^

■5帖の和室含む4LDK。18帖のLDKにはリビング収納・パントリー付き◎
■洗面脱衣室は広めの4.14㎡♪
■2階2洋室にウォークインクローゼット付き♪その他全居室収納付き♪
■南面バルコニーで陽当たり良好^^
■カースペース並列2台分あり☆
■業務スーパー塚原台店(車3分/550m)♪アクロスモール春日(車5分/1.8km)♪

◇天神山小学校:徒歩約23分/春日南中学校:徒歩約5分

☆年間1600件の相談実績☆
頭金0円可能!月々の返済がご不安な方!もっと良い条件を引き出したい方!すでにお借入のある方!など、住宅ローンのお悩みをこれまでにたくさんお受けしてきました^^
お客様に合った金融機関のご提案や、将来を見越した無理のないご返済プランの作成もしています!ぜひ一度ご相談下さい^^

周辺地図

地図を表示中...
ストリートビュー未対応エリアです。

物件詳細情報

物件用途 居住用 地目 宅地
間取り詳細 LDK18畳(1F)、和5畳(1F)、洋7畳(2F)、洋6.1畳(2F)、洋5.2畳(2F) 都市計画 市街化区域
建物向き - 用途地域 第一種住居地域
土地面積基準 実測 接道 公道 南 幅員16m
土地権利 所有権 私道面積 -
借地条件 - 道路位置指定 -
地代 - 不適合接道 -
建築確認番号 - セットバック -
現況 空家 国土法届出 不要
引渡時期 即引き渡し可 取引態様 仲介
設備その他 -
特記事項 法第22条区域
備考 -
情報更新日 2025/11/28 広告有効期限 2025/12/12
電話でお問い合わせ
ヤマダ不動産 福岡中央店 店舗情報
[所在地] 福岡県福岡市博多区博多駅南3-2-6
[営業時間] 10:00~19:00(定休日:水曜日)
Tel092-600-4407
お気軽にお問い合わせください。