鳥栖市宿町 2号地 新築戸建(売買 新築一戸建て) | 鳥栖市宿町 | 福岡市周辺の不動産のことなら ヤマダ不動産 福岡中央店

鳥栖市宿町 2号地 新築戸建 | 鳥栖市宿町の不動産物件

10万円分のヤマダポイントorJCBギフトカードor家電(TV・エアコン等)≪限定1品≫プレゼント☆
【新築一戸建て】 新築 駐車場あり オール電化
価格 3,899万円 (税込)
鹿児島本線 鳥栖駅 徒歩28分
スマホ表示
物件コード:117428
所在地 建物面積
土地面積
間取り 築年月
佐賀県鳥栖市宿町 101.02m2
215.37m2
4LDK 2026/02

物件基本情報

▲スーパー、コンビニ、ドラッグストアまで徒歩約7分圏内。周辺環境充実です^^
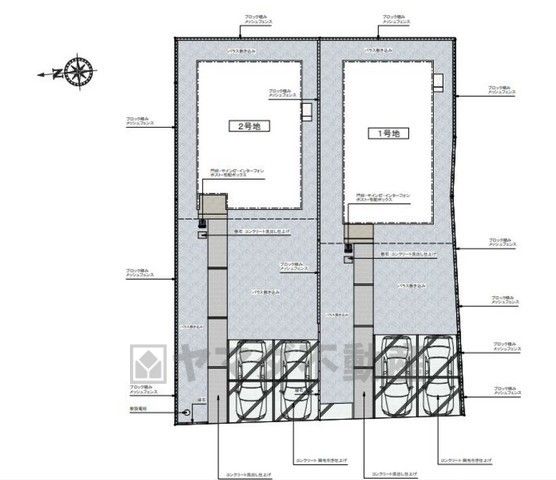
▲2号地。4LDK。南向き。日当たり、風通し良好^^
物件種目 新築一戸建て
物件名称 鳥栖市宿町 2号地 新築戸建
所在地 佐賀県鳥栖市宿町
交通
鹿児島本線 鳥栖駅 徒歩28分
九州新幹線 新鳥栖駅 徒歩28分
階数 2階建
建物構造 木造
建ぺい率/容積率 50% / 80%
駐車場 有 (2台)
学校 鳥栖北小学校 / 鳥栖中学校
設備・条件
  • 汚水:公共下水
  • 水道:公営水道
  • TVドアホン
  • Wクローゼット
  • 追い焚き
  • オール電化
  • 洗浄便座
  • シャンプードレッサー
  • 浴室1坪以上
  • 床下収納
  • 浴室乾燥機
  • オートバス
  • 食器洗乾燥機
  • カウンターキッチン
  • IHクッキングヒーター
  • コンロ三口
  • システムキッチン
  • バス・トイレ別
ヤマダ不動産 福岡中央店
Tel092-600-4407
お気軽にお問い合わせください。

画像・写真

  • 対面式キッチンなのでリビングにいるご家族とコミュニケーションを取りながら洗い物や、お料理が楽しめそうですね^^
    対面式キッチンなのでリビングにいるご家族とコミュニケーションを取りながら洗い物や、お料理が楽しめそうですね^^
  • 炊事時間を大幅に短縮できる食器洗浄乾燥機付き^^食器を洗う手間が減るので家族とのコミュニケーションの時間や自分の時間が増えますね。
    炊事時間を大幅に短縮できる食器洗浄乾燥機付き^^食器を洗う手間が減るので家族とのコミュニケーションの時間や自分の時間が増えますね。
  • ご家族の靴をスッキリと片付けられるシューズボックス付きの玄関です^^スッキリと片付いた玄関は気持ちがいいです。
    ご家族の靴をスッキリと片付けられるシューズボックス付きの玄関です^^スッキリと片付いた玄関は気持ちがいいです。
  • 6.2帖洋室。主寝室としてお使いいただけそうなこちらのお部屋は、日当たりが良く、爽やかな風を感じて起きる朝は、快適生活の始まりに。
    6.2帖洋室。主寝室としてお使いいただけそうなこちらのお部屋は、日当たりが良く、爽やかな風を感じて起きる朝は、快適生活の始まりに。
  • 6帖洋室。2面採光を確保した明るい室内は、風通しも良く、大変居心地の良い空間となっております。日当たりがよく、子供部屋としての利用もおすすめ。
    6帖洋室。2面採光を確保した明るい室内は、風通しも良く、大変居心地の良い空間となっております。日当たりがよく、子供部屋としての利用もおすすめ。
  • 1日の疲れを癒すくつろぎのバスルーム。足を伸ばしてもゆったりと入れるサイズです。お子様と一緒にお風呂に入っても狭くないですね^^
    1日の疲れを癒すくつろぎのバスルーム。足を伸ばしてもゆったりと入れるサイズです。お子様と一緒にお風呂に入っても狭くないですね^^
  • 防犯はもちろん、セールスマン対策にもなるモニター付きインターホンです。 来訪者の顔が見えるので安心ですね^^
    防犯はもちろん、セールスマン対策にもなるモニター付きインターホンです。 来訪者の顔が見えるので安心ですね^^
  • お子様も高齢の方も安心して上り下りができる手摺がついた安心設計です。
    お子様も高齢の方も安心して上り下りができる手摺がついた安心設計です。
  • 浴室暖房乾燥機には、暖房、乾燥、涼風、換気の4つの機能が付いています。タイマー付きです。換気・雨の日の洗濯も安心です^^
    浴室暖房乾燥機には、暖房、乾燥、涼風、換気の4つの機能が付いています。タイマー付きです。換気・雨の日の洗濯も安心です^^
  • おいだき機能つきなのでお風呂に入る時間が異なるご家庭には嬉しいですね。ボタン一つで快適で便利な生活が^^
    おいだき機能つきなのでお風呂に入る時間が異なるご家庭には嬉しいですね。ボタン一つで快適で便利な生活が^^
  • 室内からワンタッチで施解錠できる電気錠^^閉め忘れ防止に便利です^^
    室内からワンタッチで施解錠できる電気錠^^閉め忘れ防止に便利です^^
  • ザ・ビッグ 鳥栖店
    ザ・ビッグ 鳥栖店
  • 鳥栖市役所
    鳥栖市役所
  • ローソン 鳥栖養父町店
    ローソン 鳥栖養父町店
  • ディスカウントドラッグコスモス 養父店
    ディスカウントドラッグコスモス 養父店
  • セブンイレブン 鳥栖養父町店
    セブンイレブン 鳥栖養父町店
  • ホームセンター・グッデイ 鳥栖店
    ホームセンター・グッデイ 鳥栖店
  • ベスト電器 鳥栖店
    ベスト電器 鳥栖店
  • 鳥栖北小学校
    鳥栖北小学校
  • 鳥栖中学校
    鳥栖中学校
  • 広々としたバルコニー。 天気のいい日にはお布団もまとめて干せそうですね^^
    広々としたバルコニー。 天気のいい日にはお布団もまとめて干せそうですね^^
  • 家族が集まる開放的なリビング。思い思いの時間を過ごしたり食事をしたり、素敵な団らんの場になりますね。家具はCGによるイメージ画像です。
    家族が集まる開放的なリビング。思い思いの時間を過ごしたり食事をしたり、素敵な団らんの場になりますね。家具はCGによるイメージ画像です。
  • 開放感あふれる吹抜けリビングが、家族の時間をより心地よく演出します。
    開放感あふれる吹抜けリビングが、家族の時間をより心地よく演出します。
  • 大きな掃き出し窓のあるリビングは、陽光あふれる明るい空間です。ゆったりと寛げる憩いの場となりそうです。
    大きな掃き出し窓のあるリビングは、陽光あふれる明るい空間です。ゆったりと寛げる憩いの場となりそうです。
  • 三面鏡裏収納付き洗面化粧台です^^ 歯磨きセットやスキンケア用品などの収納に便利ですね。
    三面鏡裏収納付き洗面化粧台です^^ 歯磨きセットやスキンケア用品などの収納に便利ですね。
  • 洋室にはハンガーパイプ付きのウォークインクローゼットが設けられています。たっぷり収納できるので衣替えの心配もいりませんね^^
    洋室にはハンガーパイプ付きのウォークインクローゼットが設けられています。たっぷり収納できるので衣替えの心配もいりませんね^^
  • 1階2階の2ヶ所にトイレがありますので、忙しい朝にも家族に気を使わず、ゆとりが生まれますね^^ 小窓付きで換気する時に便利です^^
    1階2階の2ヶ所にトイレがありますので、忙しい朝にも家族に気を使わず、ゆとりが生まれますね^^ 小窓付きで換気する時に便利です^^
  • 目の前に日差しを遮る建物がないので、日当たり&風通し良好です^^心地よい自然の光や風を感じることができ、ほどよく開放感のある空間がつくれます。
    目の前に日差しを遮る建物がないので、日当たり&風通し良好です^^心地よい自然の光や風を感じることができ、ほどよく開放感のある空間がつくれます。

コメント

本日見学可能☆10万円相当のヤマダポイントorJCBギフトカードプレゼント!

■4LDK☆各部屋収納スペース付☆
■LDK19.5帖!洋室6帖以上☆
■ウォークインクローゼット☆
■安心安全オール電化♪
■南向き♪日当たり良好♪
■広々土地約65坪!
■カースペース2台付^^
■スーパー、コンビニ、ドラッグストアまで徒歩約7分圏内♪周辺環境充実です^^
■鳥栖プレミアム・アウトレットまで車(約7分/3.6km)

◇鳥栖北小学校:徒歩約10分
◇鳥栖中学校:徒歩約17分

☆年間1600件の相談実績☆
頭金0円可能!月々の返済がご不安な方!もっと良い条件を引き出したい方!すでにお借入のある方!など、住宅ローンのお悩みをこれまでにたくさんお受けしてきました^^
お客様に合った金融機関のご提案や、将来を見越した無理のないご返済プランの作成もしています!ぜひ一度ご相談下さい^^

周辺地図

地図を表示中...
ストリートビュー未対応エリアです。

物件詳細情報

物件用途 居住用 地目 宅地
間取り詳細 LDK19.5畳(1F)、和4.5畳(1F)、洋6畳(2F)、洋6.2畳(2F) 都市計画 市街化区域
建物向き 用途地域 第一種低層住居専用地域
土地面積基準 実測 接道 公道 西 幅員5m (接面9m)
土地権利 所有権 私道面積 -
借地条件 - 道路位置指定 -
地代 - 不適合接道 -
建築確認番号 - セットバック -
現況 空家 国土法届出 不要
引渡時期 即引き渡し可 取引態様 仲介
設備その他 -
特記事項 -
備考 南向き^^安心安全オール電化♪スーパー、コンビニ、ドラッグストアまで徒歩約7分圏内♪周辺環境充実^^ご購入相談で来店後、Google口コミ投稿で2000円分のQUOカードプレゼント!!※一世帯2回まで
情報更新日 2026/05/10 広告有効期限 2026/05/24
電話でお問い合わせ
ヤマダ不動産 福岡中央店 店舗情報
[所在地] 福岡県福岡市博多区博多駅南3-2-6
[営業時間] 10:00~19:00(定休日:水曜日)
Tel092-600-4407
お気軽にお問い合わせください。